Erweiterung und Sanierung Eberhard-Ludwigs-Gymnasium in Stuttgart

Die von den Architekten Adolf und Hans Bregler 1955-57 in wunderschöner Aussichtslage errichtete Gebäudegruppe zeigt sich als ein schönes Beispiel der Nachkriegsmoderne – leicht, durchlässig, lichtdurchflutet, demokratisch. Bereits 1959 wurde sie mit dem Paul-Bonatz-Preis ausgezeichnet.
Mit dem offenen Raumgefüge, großzügigen Erschließungswegen und weiten Fensterflächen bringt das Haus die Ziele humanistischer Schulbildung zum Ausdruck, allen voran die Freiheit des Geistes.

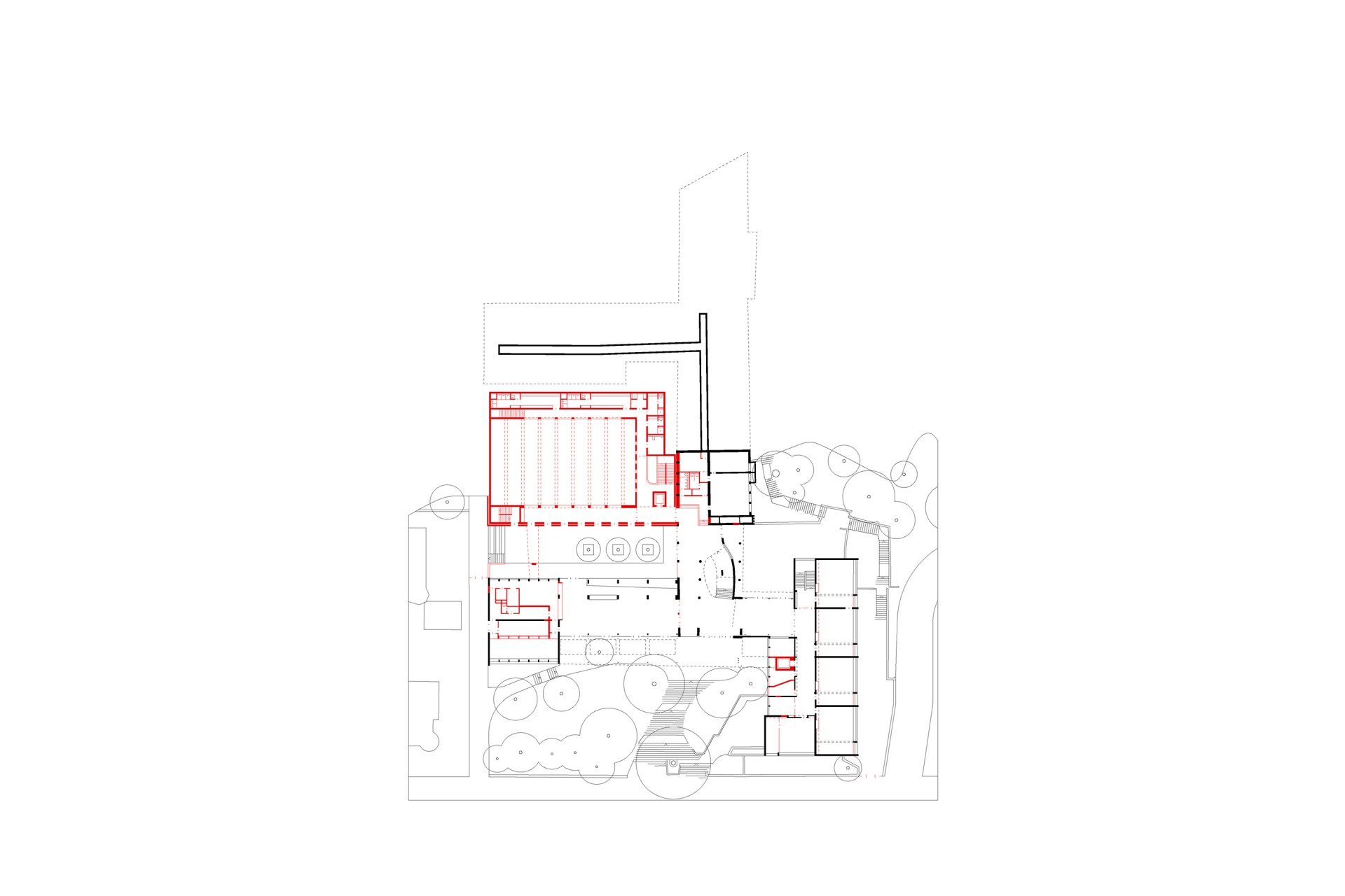
Das denkmalgeschützte Ensemble besteht aus einem langen Hauptbau, der in den steil ansteigenden Hang mit seinem alten Baumbestand hineinragt, drei weitere Baukörper mit Räumen für Verwaltung, Oberstufe und Sport schließen zu beiden Seiten an.
Innenräume und Freibereiche sind auf verschiedenen Ebenen miteinander verzahnt und bieten eine großzügige Offenheit, wie sie in dieser Form heutzutage wirtschaftlich wie energetisch kaum mehr umsetzbar ist. Dazu treten schlanke Konstruktionen, wohl überlegte Farbakzente und eine handwerklich hervorragende Ausführung.

Aus der Erweiterung des Bildungsangebots um einen Musikgymnasiumszug und den Ausbau zur Ganztagsschule ergab sich zusätzlicher Raumbedarf und weiterer Anpassungsbedarf an heutige Anforderungen.

Dazu wurde zwischen den westlichen Querflügeln ein eigener Fachklassentrakt aufgeständert. Er lässt eine wettergeschützte Pausenhoffläche frei, unter der eine neue Sporthalle und die neue Technikzentrale liegen. Durch die Bündelung vieler Nutzungen mit hohem Installationsgrad im Neubau ließen sich größere haustechnikbedingte Eingriffe im Bestand vermeiden.
Die offene Großzügigkeit der Flure mit der Kaskadentreppe im Hauptbau konnte erhalten bleiben: Ein neues Treppenhaus eröffnet einen wichtigen weiteren Fluchtweg und gewährleistet mit einem Aufzug die barrierefreie Zugänglichkeit.
Der Neubau fügt sich wie selbstverständlich in die vorhandene Struktur ein. Sein Erscheinungsbild orientiert sich an typischen Baustoffen der 1950er Jahre und knüpft wie alle weiteren Zufügungen im Sinne des „Weiterbauens“ an die Bestandsarchitektur an. So auch ein Anbau in Verlängerung des Hauptgebäudes nach Norden, der Raum für Musikfachunterricht, Instrumentenlager und Fachlehrerstützpunkte bietet.
Teile der ehemaligen Turnhalle im nördlichen Bauteil bedurften der konstruktiven Erneuerung. Sie blieb als Raum erhalten und wurde räumlich wie akustisch optimal zum separat zugänglichen Orchestersaal umgenutzt.
Der darunter liegende Umkleidebereich wurde zur Schulbibliothek mit differenzierten Arbeitsbereichen umgestaltet.
An der Stelle der vormaligen Aula im Erdgeschoss des Verwaltungsbaus schließt die neue Mensa direkt an das Foyer an. Der zweiseitig vollverglaste, lichtdurchflutete Raum profitiert von einem eigenen, hangwärts neu angelegten geschützten Freibereich.

Sanierung/Substanzerhalt
Im Zuge der denkmalgerechten Generalsanierung mussten vielerlei Schadstoffe entfernt und durch unbedenkliche Baustoffe ersetzt werden. Die Installationen für Sanitär und Elektro waren zu erneuern, ebenso wie die Anlagen für Heizung und Raumluft. Korrosion und statische Mängel tragender Bauteile wurden behoben und brandschutztechnisch ertüchtigt. Die grundlegenden brandschutztechnischen Mängel des Bestands ließen sich v.a. durch die Ergänzung von Brandschutztüren und weiterer Fluchtwege beheben.
Zur denkmalgerechten Sanierung der Gebäude-Außenhülle zählen u.a. die konstruktive Aufarbeitung der Beton-Fassadenplatten und die energetische Ertüchtigung des Dachs. Das Gros der Fenster konnte restauriert werden. Originale Scheiben sind mit Sonnen-, Wärme- und Splitterschutz-Folien ertüchtigt.
Farbbefunde wurden erhoben und die gefundenen Töne nah am originalen Farbkonzept subtil zur Gliederung der Räume eingesetzt.
Vorhandene Einbauten und Oberflächenmaterialien wurden ausgebaut, aufgearbeitet und wieder eingebaut; ebenso Elemente der denkmalgeschützten Außenanlagen.

Das Ergebnis des wertschätzenden Umgangs mit dem Baudenkmal ist der Erhalt der Substanz, der räumlichen Qualitäten und des architektonischen Ausdrucks. Durch die behutsamen Anpassungen und das einfühlsame Weiterbauen ist das Musikgymnasium für seine zukünftigen Aufgaben bestens gerüstet.

Bauherrschaft:
Landeshauptstadt Stuttgart, Referat Jugend und Bildung, Schulverwaltungsamt,
vertreten durch Technisches Referat, Hochbauamt

Architekten:
LRO Lederer Ragnarsdóttir Oei, Stuttgart
Marc Oei, Katja Pütter, Klaus Hildenbrand, Heiko Müller
Nicole Epple, Carla Feine, Henri-Pierre Finkeldei, Daniel Haselberger, Aline Kälber, Philipp Lülsdorf, Sonja Malm, Patrick Penteker, Johannes Schreiner, Patrizia Schreiner, Wolfram Sponer, Lukas Volz, Natalie Wurm; Jochen Bornträger

Projektsteuerung:
nps Bauprojektmanagement, Stuttgart

Freianlagenplanung:
Gänßle+Hehr Landschaftsarchitekten, Esslingen a.N.

Tragwerksplanung:
ZPP Ingenieure AG, Karlsruhe

Tragwerksplanung (Absturzsicherungen):
Reichert Tragwerksplanung, Schwäbisch Gmünd

Prüfstatik:
matrix ingenieure, Stuttgart

Brandschutzgutachter:
umt Umweltingenieure GmbH, Ulm

Bauphysik:
GN Bauphysik Ingenierugesellschaft mbH, München

Haustechnik:
Mohr Solutions Ingenieure GmbH, Göppingen

Elektroplanung:
Conplaning GmbH, Neu-Ulm

Vermessungstechnik 1:
Ingenieurbüro Wüsteney, Esslingen a.N.

Vermessungstechnik 2:
intermetric GmbH, Ditzingen

SiGeKo:
David Mader, Stuttgart

Geologe:
Vees&Partner, Leinfelden-Echterdingen

Ökologie:
Arbeitsgruppe für Tierökologie und Planung, Filderstadt

Schadstoffanalyse/-Sanierung:
Sakosta, Stuttgart

Restauration:
Dr. Julia Feldtkeller, Tübingen (Farbanalyse, Ziegelmosaik)

Machbarkeitsstudie:
2013

Baubeginn:
01/2021

Fertigstellung:
12/2025, Inbetriebnahme: Anfang 2026

BGF:
12.670 qm – 9.520 qm BGF (Bestand), 3.150 qm BGF (Neubau)

BRI:
50.500 cbm

Standort:
Herdweg 72, 70174 Stuttgart

Fotos:
Roland Halbe, Stuttgart

Erweiterung und Sanierung  Eberhard-Ludwigs-Gymnasium in Stuttgart
Erweiterung und Sanierung  Eberhard-Ludwigs-Gymnasium in Stuttgart
Erweiterung und Sanierung  Eberhard-Ludwigs-Gymnasium in Stuttgart
Erweiterung und Sanierung  Eberhard-Ludwigs-Gymnasium in Stuttgart
Erweiterung und Sanierung  Eberhard-Ludwigs-Gymnasium in Stuttgart
Erweiterung und Sanierung  Eberhard-Ludwigs-Gymnasium in Stuttgart
Erweiterung und Sanierung  Eberhard-Ludwigs-Gymnasium in Stuttgart
Erweiterung und Sanierung  Eberhard-Ludwigs-Gymnasium in Stuttgart
Erweiterung und Sanierung  Eberhard-Ludwigs-Gymnasium in Stuttgart
Erweiterung und Sanierung  Eberhard-Ludwigs-Gymnasium in Stuttgart
Erweiterung und Sanierung  Eberhard-Ludwigs-Gymnasium in Stuttgart
Erweiterung und Sanierung  Eberhard-Ludwigs-Gymnasium in Stuttgart
Erweiterung und Sanierung  Eberhard-Ludwigs-Gymnasium in Stuttgart
Erweiterung und Sanierung  Eberhard-Ludwigs-Gymnasium in Stuttgart
Erweiterung und Sanierung  Eberhard-Ludwigs-Gymnasium in Stuttgart
Erweiterung und Sanierung  Eberhard-Ludwigs-Gymnasium in Stuttgart
Erweiterung und Sanierung  Eberhard-Ludwigs-Gymnasium in Stuttgart
Erweiterung und Sanierung  Eberhard-Ludwigs-Gymnasium in Stuttgart
Erweiterung und Sanierung  Eberhard-Ludwigs-Gymnasium in Stuttgart